FALE COM UM CONSULTOR

Planta

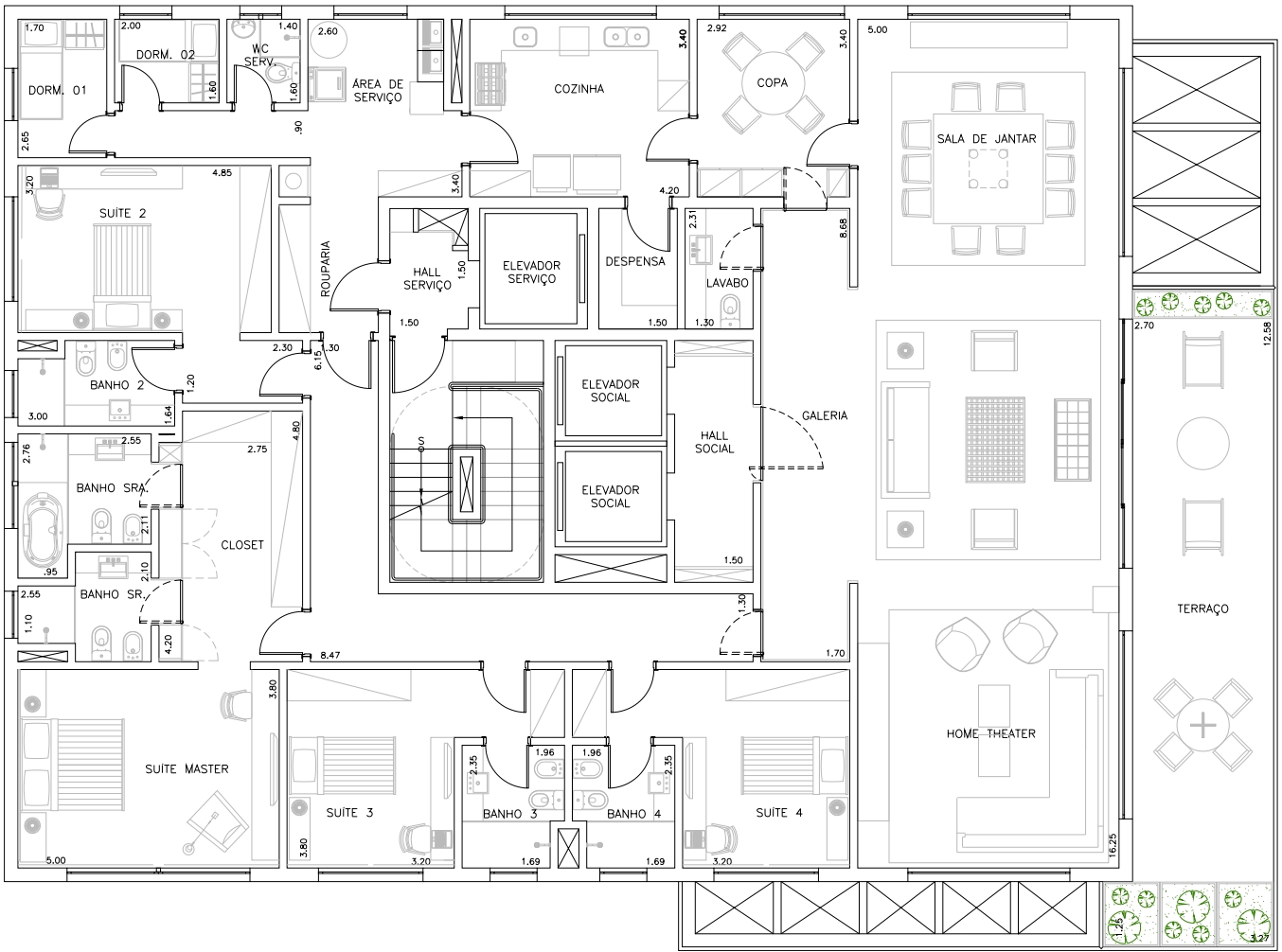
Tranquilidade e privacidade distribuídos ao longo de 371m². Com 4 suítes, sendo uma delas suíte master, o imóvel também possui 2 dormitórios. As amplas áreas sociais como sala de jantar, sala de estar e um espaço para home theater proporcionam momentos de bem-estar para toda a família. A varanda espaçosa possui uma das mais belas vistas de São Paulo.

Arquitetura

O renomado arquiteto argentino Pablo Slemenson é quem assina o projeto arquitetônico do Mena Barreto. Reconhecido internacionalmente por suas propostas autênticas, que garantem satisfação absoluta e agregam valor ao empreendimento, ele se formou pela FAU Mackenzie em 1981. Desde então já se aventurou como designer de luminárias e móveis, e também coleciona diversos importantes prêmios de arquitetura.

Ousado criativamente, sempre prioriza o design inteligente agregando conforto, flexibilidade e sensibilidade em todos os projetos que levam seu nome.

DESIGN
Com seu olhar talentoso e detalhado, a designer Cláudia Moreira Salles assinou os ambientes comuns do Mena Barreto 423. Experiente, formou-se na Escola Superior de Desenho Industrial em 1978 e iniciou sua experiência profissional no Instituto de Desenho Industrial do Museu de Arte Moderna do Rio de Janeiro.

Saiba Mais

Informe seu e-mail e receba informações sobre o empreendimento.

Projeto e Localização

O Jardim Paulista acaba de receber um novo empreendimento com a qualidade JHSF: o Mena Barreto 423.

Projetado pelo renomado arquiteto Pablo Slemenson, o empreendimento tem somente 5 apartamentos, tendo suas 2 últimas unidades disponíveis com 371m² cada.

Próximo ao Parque do Ibirapuera, o edifício dá um novo significado à vida urbana, criando uma forte relação entre a cidade grande e os pequenos detalhes que fazem toda a diferença.

Entre em Contato

* Campos obrigatórios